Flüchtlingsunterkünfte, Durmersheim

Referenz ID: P1530049
Kategorie: Dreßler SYSTEM
Unterkategorie: Dreßler SYSTEM

Projektbeschreibung:

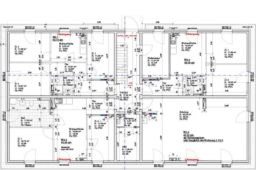
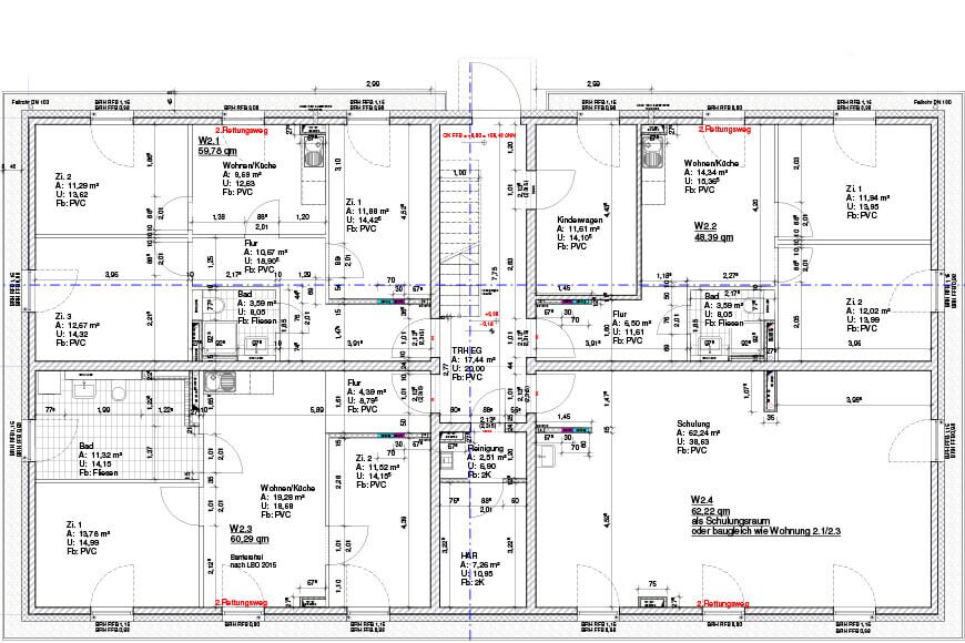
In der Pilgerstraße der Gemeinde Durmersheim wurden 2 Häuser als Flüchtlingswohnheime erbaut. Die Bauleistung wurde schlüsselfertig erbracht.

 

Gebäudedaten:

  • Brutto-Geschossfläche: ca. 1.800 m²
  • Brutto-Rauminhalt: ca. 4.300 m³
  • Nutzfläche: 1.440 m²
Bauherr: Gemeinde Durmersheim
Architekt: Dreßler Bau GmbH
Bauzeit: Mai 2016 bis November 2016
Gewerk: schlüsselfertig
Kontakt: Niederlassung Karlsruhe Dreßler Bau GmbH Am Großmarkt 10 76137 Karlsruhe 0721 66737-0 ka-nl@dressler-bau.de www.dressler-bau.de